Casa NAOMI

Categorie: Locuință unifamilială

Locație: Jucu, Cluj

Year: 2025

Arhitect coordonator: Mihaela SAVIȚCHI

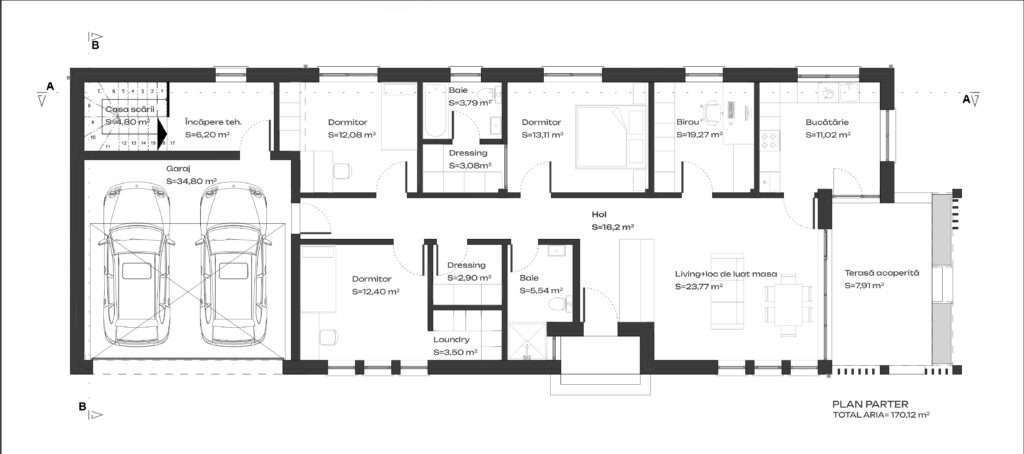
Locuința unifamilială este amplasată într-un context rural din județul Cluj, într-o zonă caracterizată de deschidere către peisaj rural. Concepută cu regim de înălțime parter (P), casa răspunde dorinței beneficiarilor de a avea un spațiu de locuit funcțional, accesibil și bine conectat cu exteriorul.

whatsapp image 2026 01 20 at 5.45.42 pm

Forma alungită a parcelei a determinat o amplasare paralelă cu frontul stradal, rezultând un volum clar, bine proporționat, care se integrează firesc în țesutul rural existent.

Arhitectura propune o expresie echilibrată, situată între tradiție și interpretare contemporană. Materialitatea fațadelor este definită printr-un dialog între tencuiala decorativă albă, cărămida aparentă și elementele din lemn, care adaugă căldură și profunzime vizuală ansamblului. Acoperișul în două ape, cu streașină generoasă, contribuie la integrarea în specificul local, în conformitate cu prevederile Ghidului de Arhitectură pentru zona rurală.

Relația cu exteriorul este atent controlată prin deschideri vitrate verticale de mari dimensiuni, dispuse predominant pe fațada laterală, asigurând o iluminare naturală amplă și o legătură constantă cu grădina. Zona de zi se deschide direct către terasă prin uși glisante, facilitând o continuitate fluidă între interior și exterior. Pergola din lemn marchează acest spațiu de tranziție, oferind protecție, intimitate și un cadru propice pentru relaxare.

Organizarea interioară urmărește o logică funcțională clară, separând zonele de zi de cele de odihnă, astfel încât locuința să răspundă eficient nevoilor cotidiene ale familiei. Proiectul propune o locuire calmă, bine echilibrată, în care lumina naturală, materialele autentice și relația cu terenul contribuie la crearea unui ambient confortabil și durabil.